NHÀ HỒNG XIÊM

Chủ đầu tư: Ms. Nguyễn Lý

Địa điểm: Vĩnh Phúc

Quy mô: 314 sqm

Hạng mục: Thiết kế kiến trúc

Chủ trì thiết kế: KTS. Vũ Ngọc Hậu

Nhóm thực hiện: Đỗ Sơn, Trần Thị Hồng Nhung, Đặng Văn Nam, Lê Thu Phượng

Năm: 2025

Nhà Hồng Xiêm

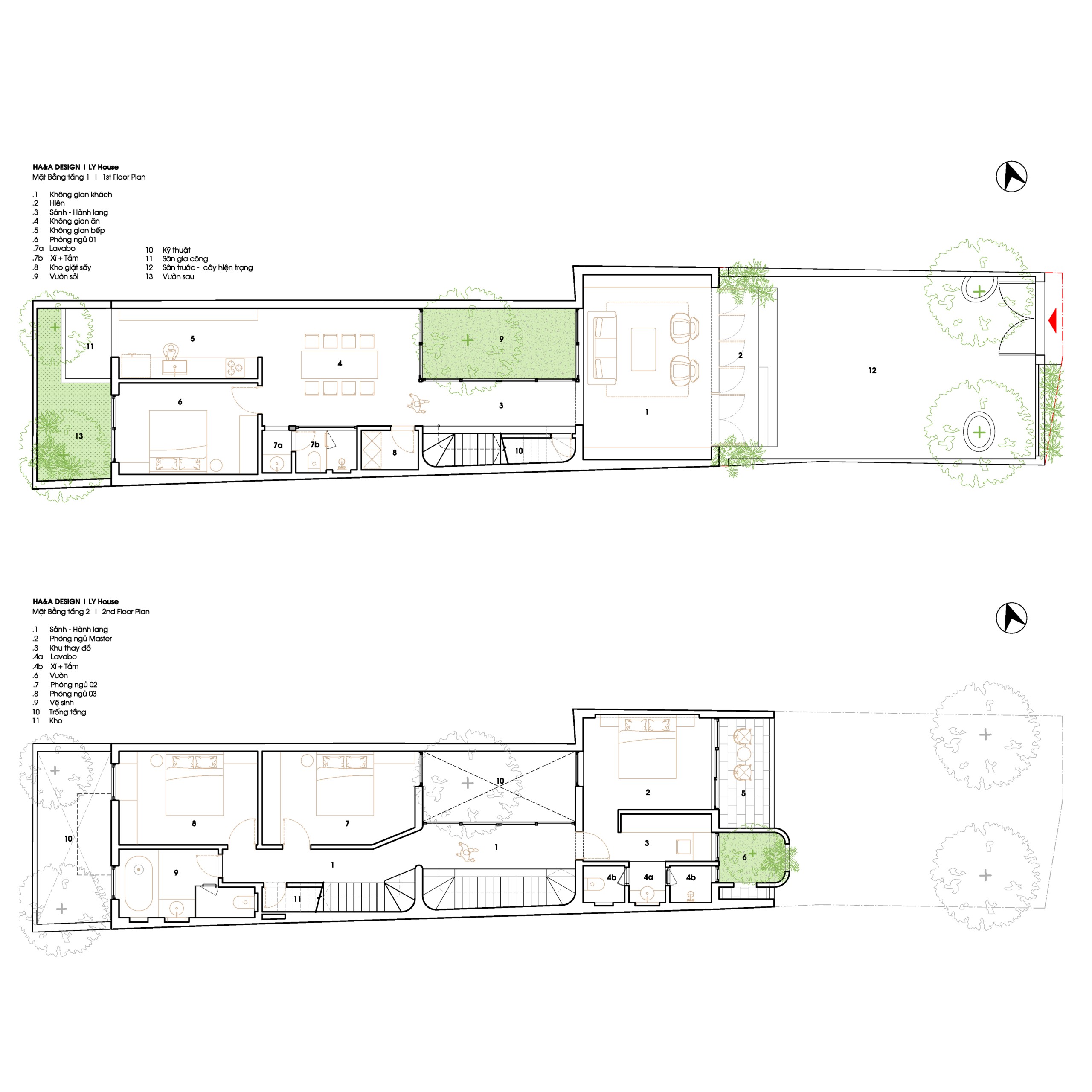
“Nhà Hồng Xiêm” được xây dựng trên mảnh đất do tổ tiên để lại. Gia chủ là một cặp vợ chồng thuộc thế hệ đầu thập niên 1980. Sau nhiều năm làm ăn xa, họ mong muốn xây dựng một ngôi nhà đáp ứng nhu cầu sống giản dị, gần gũi với thiên nhiên và tránh xa sự ồn ào náo nhiệt. Là con trai trưởng trong gia đình, gia chủ cũng cần một khoảng sân trước rộng rãi để tiện cho những dịp cúng giỗ, tụ họp đông người.

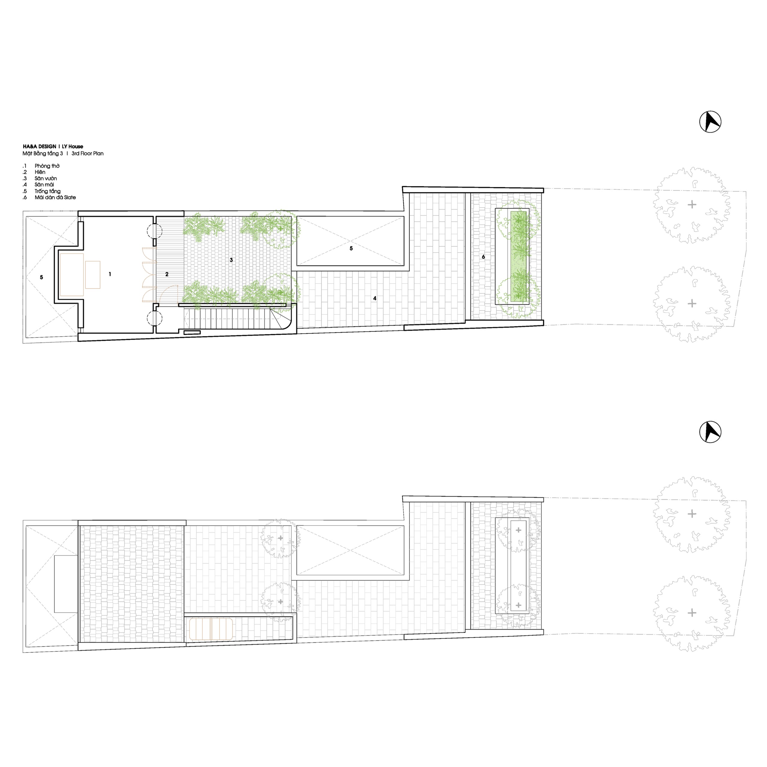
Sau khi khảo sát và đánh giá hiện trạng khu đất, chúng tôi quyết định giữ lại hai cây hồng xiêm lâu năm. Định hướng thiết kế mong muốn gợi nhớ đến hình ảnh những ngôi nhà ngói truyền thống — với mái dốc mang hơi hướng hiện đại, sử dụng chất liệu tự nhiên nhưng vẫn tạo cảm giác tươi mới, đương đại. Bên cạnh việc đảm bảo đầy đủ công năng sử dụng, các yếu tố thông gió và chiếu sáng tự nhiên cũng được cân nhắc kỹ lưỡng. Ngôi nhà được kỳ vọng sẽ mang hình ảnh thân thuộc, ấm cúng và đong đầy cảm xúc.

 

The Sapodilla House

“The Sapodilla House” was built on land passed down from the ancestors. The homeowners are a couple from the early 1980s generation. They have been working away from home for many years, and now they wish to build a house that serves their desire for a simple life, close to nature, and away from the hustle and bustle. As the eldest son in the family, the homeowner also needed a spacious front yard to accommodate gatherings during ancestral worship ceremonies.

After surveying and assessing the site, we decided to preserve two old sapodilla trees. The design direction aimed to evoke the essence of traditional tiled-roof houses — featuring sloping roofs with a modern touch, using natural materials while maintaining a fresh and contemporary feel. In addition to ensuring functionality, ventilation and natural lighting were carefully considered. The house is intended to embody a familiar, warm, and emotionally rich presence.

 

Để lại một bình luận

Email của bạn sẽ không được hiển thị công khai. Các trường bắt buộc được đánh dấu *