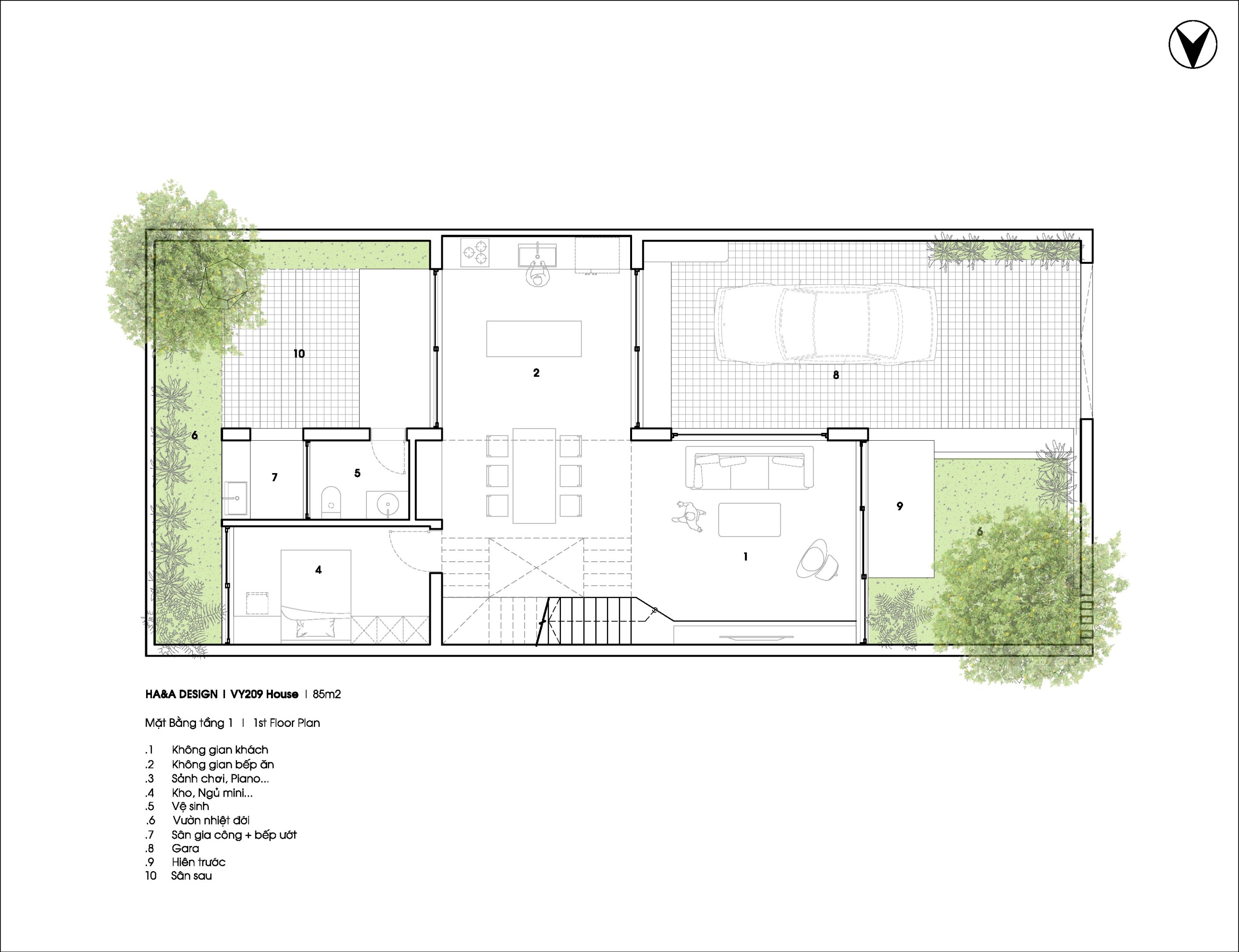
Houses, ProjectsVY209 Chủ đầu tư: Mr. Trung -Mrs. Chinh Địa điểm: Chùa Hà, Vĩnh Yên, Vĩnh Phúc Quy mô: 285m2 Hạng mục: Thiết kế kiến trúc Nhóm thực hiện: Đỗ Văn Sơn, Lê Thu Phượng, Trần Thị Hồng Nhung, Đặng Văn Nam Năm: 2025 NHÀ TVV NHÀ HỒNG XIÊM Để lại một bình luận HủyEmail của bạn sẽ không được hiển thị công khai. Các trường bắt buộc được đánh dấu *Bình luận * Tên Email Trang web Lưu tên của tôi, email, và trang web trong trình duyệt này cho lần bình luận kế tiếp của tôi.